Тормоз колодочный ТКГ (крановый тормоз ТКГ)

 Тормоз серии ТКГ: виды и модификации

Тормоз ТКГ – это современное изделие, пришедшее на смену тормозам устаревшей серии ТКТГ.                              Назначение и общее устройство тормоза осталось прежним, но тормоза стали чуть компактнее, легче и экономичнее.

Мы рады предложить Вам тормоз серии ТКГ в любом размере и исполнении: начиная от миниатюрных ТКГ-100 и заканчивая тяжелыми ТКГ-800. Принципиальное различие у этих тормозов, помимо размера, заключается только в типе толкателя, которым они оснащаются.

Тормоза от ТКГ – 100 по ТКГ – 500 включительно Вы можете приобрести не только в общепромышленном, но и во взрывозащищенном исполнении. Каждый такой тормоз ТКГ укомплектован серии ТЭ-30, ТЭ-50 или ТЭ-80.

   Технические и эксплуатационные особенности

Расположение тормозов: вертикальное; Расположение оси тормозного шкива: горизонтальное; Работают во взрывобезопасной среде; На открытом воздухе для тормозов необходима специальная защита — кожух от попадания атмосферных осадков и действия солнечной радиации; Климатическое исполнение «У», категория «2»; Относительная влажность воздуха: 80% при 20°С.; Температура окружающего воздуха: — 40°С. до +40°С.; Рабочее напряжение 380В; Частота тока 50 Гц; Окружающая среда не должна содержать паров или газов.

Все расходные запчасти и комплектующие Вы можете приобрести у нас.                                                                      Накладки, колодки, толкатели: все необходимое чтобы укомплектовать тормоз ТКГ.

Технические характеристики

Параметр

Наименование тормоза ТКГ

160

200

300

400

500

600

Тормозной момент, Нм max

100

300

800

1500

2500

5000

Диаметр тормозного шкива, мм

160

200

300

400

500

600

Потребляемая мощность, Вт

160

160

200

240

240

300

Род тока

380В 50Гц

Тип толкателя

ТЭ-30

ТЭ-30

ТЭ-50

ТЭ-80

ТЭ-80

ТЭ-200

Усилие штока, Н

300

300

500

800

800

2000

Ход штока толкателя, мм

30

30

65

65

65

60/120

Время наложения колодок, с

0,2

0,2

0,35

0,4

0,4

0,45

Масса тормоза, кг

22

30

55

95

150

250

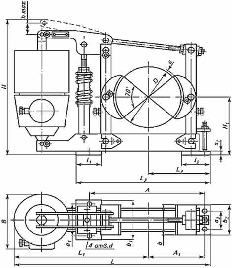
Габаритные размеры

Наименование

Габаритные размеры, мм

А

А1

В

D

Н

Н1

L

L1

L2

L3

ТКГ-160

200

72

202

160

415

144

495

355

263

140

ТКГ-200

350

175

200

425

170

603

419

415

213

ТКГ-300

500

250

212

300

550

240

772

502

560

270

ТКГ-400

340

170

232

400

600

300

895

630

530

265

ТКГ-500

410

205

500

735

400

1160

727

786

433

Наименование

Габаритные размеры, мм

а1

а2

b

b1

b2

d

hmах

l1

l2

s

s1

ТКГ-160

90

70

120

13

32

30

6

6

ТКГ-200

120

60

90

150

90

18

50

80

8

7

ТКГ-300

150

80

140

190

120

22

65

80

100

12

ТКГ-400

68

180

180

128

80

120

ТКГ-500

85

200

200

140

27

180

Сделайте заявку на нашу электронную почту technoex@yandex.ru, укажите типы нужных Вам тормозов, их количество, а также приложите реквизиты Вашей компании для выставления счета. После получения предоплаты мы вышлем продукцию в Ваш адрес. 

Тормоз ТКГ: часто задаваемые вопросы

  1. Ваши тормоза новые?

Да, все наши тормоза новые и находятся на гарантии. Учитывая, что мы продаем тормоза в ежедневном режиме, партиями различной величины, то Вы получите тормоз ТКГ, изготовленный в течение месяца предшествующего покупке.

  1. Какова гарантия на тормоз ТКГ?

На каждый тормоз ТКГ, изготовленный на нашем производстве, распространяется гарантия сроком в 12 месяцев. Гарантия не касается случаев связанных с естественным износом и поломками случившимися по вине потребителя.

  1. Тормоз продается с колодками?

Конечно! Каждый тормоз серии ТКГ поставляется ТОЛЬКО с колодками!

  1. Что входит в комплектацию?

Помимо рамки тормоза с колодками и толкателя (если Вы заказали тормоз ТКГ в сборе), в комплектацию входит индивидуальный паспорт. В паспорте указан номер тормоза, дата изготовления и даны указания по установке и обслуживанию.

  1. Можно ли у Вас купить ЗИП к тормозу?

Да, по дополнительному заказу Вы сможете купить тормоз ТКГ с комплектом запасных накладок к колодкам и сальников к толкателю. Либо купить их отдельно.

Тормоз ТКГ является крайне неприхотливым и несложным в обслуживании. К перечню регулярных действий относятся:

  • Проверка сальников и уплотнителей толкателя. При необходимости их замена.
  • Контроль уровня трансформаторного масла и его ежегодная замена.
  • Регулировка тормоза по мере износа накладок.
  • Осмотр и замена тормозных накладок. Недопустимы трещины, частичные обрывы и износ более 50% в средней части накладок.
  • Все подвижные соединения должны быть смазаны.